Победа 15
1 116 500
15,6 м²
Модуль ПОБЕДА - только то, что необходимо и достаточно для счастливой жизни
Компактные и бюджетные, в то же время комфортабельные дома серии "Победа" представлены в виде 1-, 2- и 3-модульных комплектов.
- ЛАКОНИЧНЫЕ ИНТЕРЬЕРЫ
- КАЧЕСТВЕННЫЕ ДОСТУПНЫЕ МАТЕРИАЛЫ
- ОПТИМАЛЬНАЯ ОРГАНИЗАЦИЯ ПРОСТРАНСТВА
- КОМПАКТНАЯ И УЮТНАЯ КУХНЯ




Характеристики
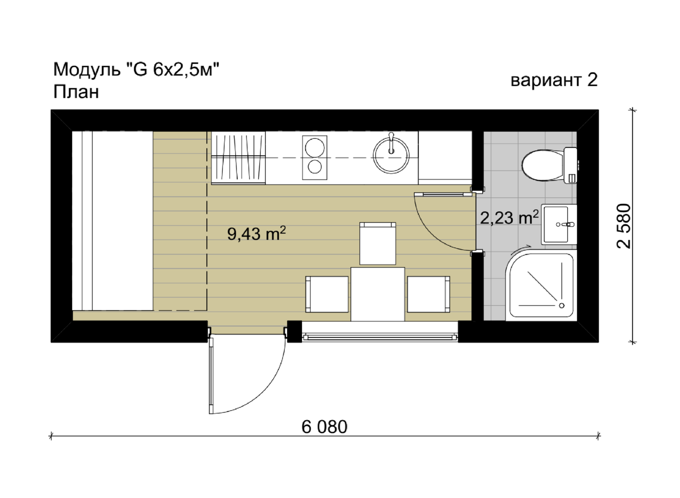
- Жилая площадь, м² 15
- Общая площадь застройки, м² 15,6
- Кол-во комнат 1
- Размеры модуля 6м х 2,58м
Описание проекта
Спецификация
СИЛОВОЙ КАРКАС- огнебиозащита – весь силовой каркас
- сечение стоек внешних стен дома – доска хвойных пород, камерной сушки 45*145 мм
- сечение стоек внутренних перегородок – доска хвойных пород, камерной сушки 45*95 мм
- типичный шаг стоек стен – 640 мм (590 мм между стойками)
- балки пола – доска хвойных пород, камерной сушки 45*195 мм
- балки перекрытия кровли – доска хвойных пород, камерной сушки 45*195 мм
- обшивка стен OSB 3 – 12 мм
- обшивка пола и перекрытия кровли OSB 3 – 18 мм
УТЕПЛЕНИЕ
- плитный базальтовый утеплитель Roсkwool Каркас 37 кг/м³
- утепление внешних стен – 150 мм
- утепление полов и кровли – 200 мм
- утепление перегородок – 100 мм
ПЛЁНКИ
- пароизоляция внешних стен, полов и потолка изнутри помещений – пленка "FINKA PREMIUM" 200 мкм с проклейкой стыков
- гидро-ветроизоляция внешних стен – паропроницаемая изоляционная мембрана
ФАСАД
- планкен по деревянному к ФАСАД-каркасу, покраска маслом
КРОВЛЯ
- EPDM мембрана
ИНЖЕНЕРИЯ
- разводка ХВ, ГВ – трубы из сшитого полиэтилена REHAU
- разводка канализации
- бойлер электрический 80 л.
- теплый пол пленочный инфракрасный по всем помещениям, в санузле - электрический в матах.
- приточный проветриватель (бризер)
- вытяжка в санузле и на кухне
- кондиционирование – сплит-система
ЭЛЕКТРИКА
- монтаж кабельных трасс
- электрический щит
- светильники, розетки, выключатели по дизайн-проекту
ДВЕРИ
- межкомнатные двери по дизайн-проекту
- уличная дверь – Ferroni металлическая с терморазрывом 24 мм на полотне и коробе, утепленная
ОКНА
- стеклопакет с закаленным и тепло сберегающим стеклом Сlima Guard Premium
- окна пластиковые ламинированные
ВНУТРЕННЯЯ ОТДЕЛКА
- пол - SPC ламинат, с/у - керамическая плитка
- стены - имитация бруса, покраска маслом
- потолок - натяжные ПВХ потолки
САНТЕХНИКА
- по дизайн-проекту
МЕБЕЛЬ
- по дизайн-проекту
БЫТОВАЯ ТЕХНИКА
- по дизайн-проекту
КОМПЛЕКТАЦИИ И ЦЕНЫ:
| НАПОЛНЕНИЕ | Комплектации | |
|---|---|---|
| КОМФОРТ | ПРЕМИУМ | |
| Каркас, утепление, изоляция | ● | ● |
| Кровля | ● | ● |
| Наружная отделка | ● | ● |
| Внутренняя отделка | ● | ● |
| Санузел отделка | ● | ● |
| Бризер | ● | ● |
| Кондиционер | ● | ● |
| Разводка воды и канализации | ● | ● |
| Санузел наполнение | ● | ● |
| Электрощитовая, монтаж кабельных трасс | ● | ● |
| Установка оконечных электроустройств | ● | ● |
| Мебель | ● | |
| Бытовая техника | ● | |
|
ИТОГО Победа 15 |
1 116 500 р | 1 440 600 р. |
Галерея
Оставить заявку
Если Вам понравился этот проект, оставьте заявку на сайте, наш менеджер свяжется с Вами и проконсультирует более подробно.


