Дом 52кв.м с участком 7,92га в посёлке Горки 9-18 на продажу
Продаётся 1-этажный дом, 52 м² в посёлке «Gorki 9-18 (Горки 9-18)»
Без посредников, собственником. полностью готов заселению. Мебель, кухня, бытовая техника, двухспальная кровать, стол-тумба, шкафы-купе и т.д. в комплекте.Проведено благоустройство территории участка.
Посёлок расположен в лесном массиве, экологически чистом районе. Организована круглосуточная охрана, по всему поселку качественные щебеночные дороги, уличное освещение, рядом общественная зона с детской и спортивной площадками, пруд.
Инфраструктура д. Степаньково и п. Нудоль – магазин, аптека, детский сад, школа. Хорошая транспортная доступность по Новорижскому шоссе, можно воспользоваться платной трассой М-11, до ж/д станции Новопетровская 15 минут на машине.На участке растут молодые берёзки.





Описание проекта
Фасады выполнены из фиброцементной плиты со вставками из деревянных реек. Возможна вариативность цветов панелей и выкраса реек. Безопасность и практичность материалов в сочетании с продуманными планировками и качественным исполнением – всё, что нужно для комфорта Вашей семьи. Панорамные окна смотрят прямо на природу. А энергосберегающий стеклопакет обеспечит лучшую теплоэффективность помещений. Сочетание СМЛ панелей и деревянных реек дарит ощущение современного уюта.
Инфракрасные тёплые полы, кондиционер и бризер обеспечат возможность для комфортного круглогодичного проживания.
Спецификация
СИЛОВОЙ КАРКАС- огнебиозащита – весь силовой каркас
- сечение стоек внешних стен дома – доска хвойных пород, камерной сушки 45*145 мм
- сечение стоек внутренних перегородок – доска хвойных пород, камерной сушки 45*95 мм
- типичный шаг стоек стен – 640 мм (590 мм между стойками)
- балки пола – доска хвойных пород, камерной сушки 45*195 мм
- балки перекрытия кровли – доска хвойных пород, камерной сушки 45*195 мм
- обшивка стен OSB 3 – 12 мм
- обшивка пола и перекрытия кровли OSB 3 – 18 мм
УТЕПЛЕНИЕ
- плитный базальтовый утеплитель Roсkwool Каркас 37 кг/м³
- утепление внешних стен – 150 мм
- утепление полов и кровли – 200 мм
- утепление перегородок – 100 мм
ИЗОЛЯЦИЯ
- пароизоляция внешних стен, полов и потолка изнутри помещений – пленка "FINKA PREMIUM" 200 мкм с проклейкой стыков
- гидро-ветроизоляция внешних стен – паропроницаемая изоляционная мембрана
ФАСАД
- окрашенная фиброцементная панель 8 мм на подсистеме из оцинкованного профиля, деревянная реечная панель
КРОВЛЯ
- EPDM мембрана
ИНЖЕНЕРИЯ
- разводка ХВ, ГВ – трубы из сшитого полиэтилена REHAU
- разводка канализации
- бойлер электрический 80 л.
- теплый пол пленочный инфракрасный по всем помещениям, в санузле - электрический в матах.
- приточный проветриватель (бризер)
- вытяжка в санузле и на кухне
- кондиционирование – сплит-система
ЭЛЕКТРИКА
- монтаж кабельных трасс
- электрический щит
- светильники, розетки, выключатели по дизайн-проекту
ДВЕРИ
- межкомнатные МДФ двери по дизайн-проекту
- уличная дверь – Ferroni металлическая с терморазрывом 24 мм на полотне и коробе, утепленная
- дверь на террасу пластиковая ламинированная со стеклопакетом
ОКНА
- стеклопакет с закаленным и тепло сберегающим стеклом Сlima Guard Premium
- окна пластиковые ламинированные
ВНУТРЕННЯЯ ОТДЕЛКА
- пол - SPC ламинат, с/у - керамическая плитка
- стены - стекломагниевые листы 8 мм, окрашенные акриловой краской, деревянная реечная панель
- потолок - натяжные ПВХ потолки со световыми линиями 30 мм
САНТЕХНИКА
- по дизайн-проекту
МЕБЕЛЬ
- по дизайн-проекту
БЫТОВАЯ ТЕХНИКА
- по дизайн-проекту
КОМПЛЕКТАЦИЯ
| НАПОЛНЕНИЕ | НАЛИЧИЕ |
|---|---|
| Каркас, утепление, изоляция | ● |
| Кровля | ● |
| Наружная отделка | ● |
| Внутренняя отделка | ● |
| Санузел отделка | ● |
| Бризер | ● |
| Кондиционер | ● |
| Разводка воды и канализации | ● |
| Санузел наполнение | ● |
| Электрощитовая, монтаж кабельных трасс | ● |
| Установка оконечных электроустройств | ● |
| Мебель | ● |
| Бытовая техника | ● |
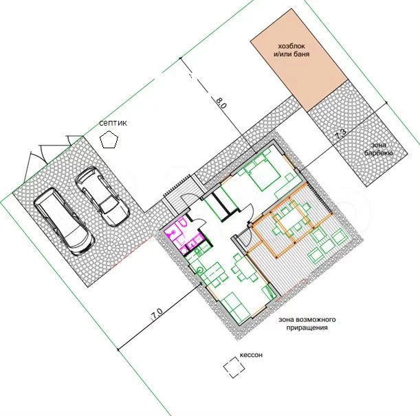
При желании дом можно дорастить дополнительными модулями, увеличив его площадь до 70 или 90 квадратных метров. При планировании расположения дома на участке мы предусмотрели такую возможность.
В данном случае Вы можете заказать у нас производство модулей, при этом продолжить проживание в своем доме. Готовые модули мы привезем к Вам на участок и смонтируем в течение нескольких дней.
Характеристики
- Год постройки 2022
- Кол-во комнат 2
- Общая площадь, м2 52
- Площадь застройки, м2 80
- Этажей 1
Галерея
Заказать расчет
Оформите заявку на сайте, мы свяжемся с вами в ближайшее время и ответим на все интересующие вопросы.


